SW30HR-380性能參數:
性能特點
陶氏FILMTEC™SW30HR-380 是高級海水淡化反滲透膜元件,它的有效膜面積高、脫鹽率高,能為海水淡化系統帶來長期的最佳經濟性。
陶氏SW30HR-380 對硼的脫除率極高,可滿足世界衛生組織(WHO)和其它飲用水的嚴格標準;
陶氏SW30HR-380 與其它品牌相比,在使用壽命期內具有更高的性能,元件制造過程中也無需進行后處理,這就是為什么陶氏FILMTECTM元件更經久耐用,比其它品牌膜清洗pH 范圍更寬,清洗效率更高;
全自動精密制造技術,采用了縮短膜片長度,增加膜葉數的先進結構,降低了總體污染水平,最大程度地提高了膜效率。

產品規范
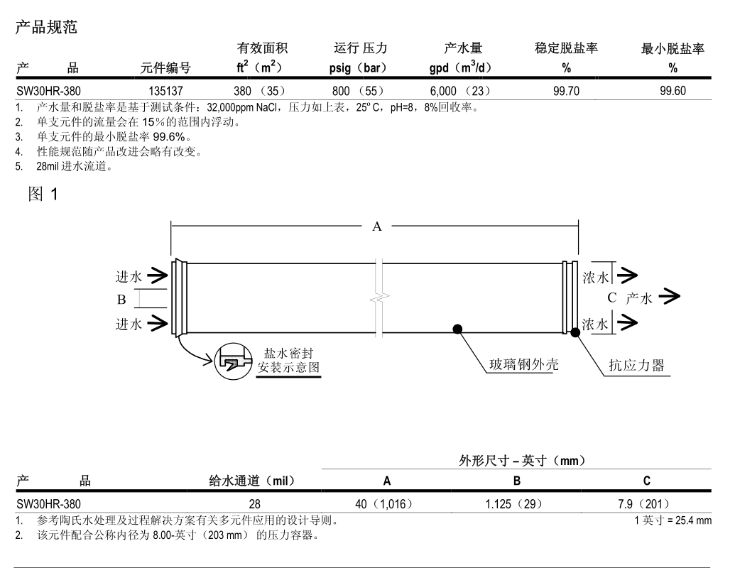
產品 元件編號 有效面積ft2(m2) 運行壓力psig(bar) 產水量gpd(m3/d) 穩定脫鹽率% 最小脫鹽率%
SW30HR-380 135137 380 (35) 800 (55) 6,000 (23) 99.70 99.60
1. 產水量和脫鹽率是基于測試條件:32,000ppm NaCl,壓力如上表,25ºC,pH=8,8%回收率。
2. 單支元件的流量會在15%的范圍內浮動。
3. 單支元件的最小脫鹽率99.6%。
4. 性能規范隨產品改進會略有改變。
5. 28mil 進水流道。